Drafting
AutoCAD I, AutoCAD II, Revit I
December 2024

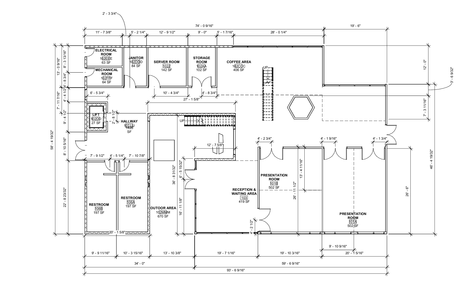
Production of Floor Plans for the Development of the Buildings
Drafting architectural plans is crucial to me as it forms the foundation of an innovative and sustainable design process. It is through drafting that I can transform my visionary ideas rooted in biophilia, science, and fluidity into tangible frameworks that guide every step of a project’s development. For me, drafting is not merely a technical exercise but an opportunity to explore the nuances of designs, ensuring they align with my commitment to creating impactful, high-standard architecture. It allows me to communicate my vision clearly to collaborators and peers, fostering collaboration and ensuring that everyone involved shares a unified understanding of the project. For architects in general, drafting is indispensable as it bridges the gap between abstract concepts and physical structures. It ensures that ideas are not only creative but also functional, safe, and achievable within given constraints. Architectural plans serve as a roadmap, detailing every aspect of a structure’s design, from spatial layouts to materials and construction techniques. Without drafting, architects would lack the precision and clarity needed to execute their designs effectively. For me, this process is even more significant, as it supports my mission to integrate sustainability and innovation seamlessly, turning my own creative vision into structures that inspire and endure.

Material Documentation





See The Design In Everything
Contact for more details
Drafting


AutoCAD I, AutoCAD II, Revit I
December 2024
Revit, Rhino 3D, AutoCAD
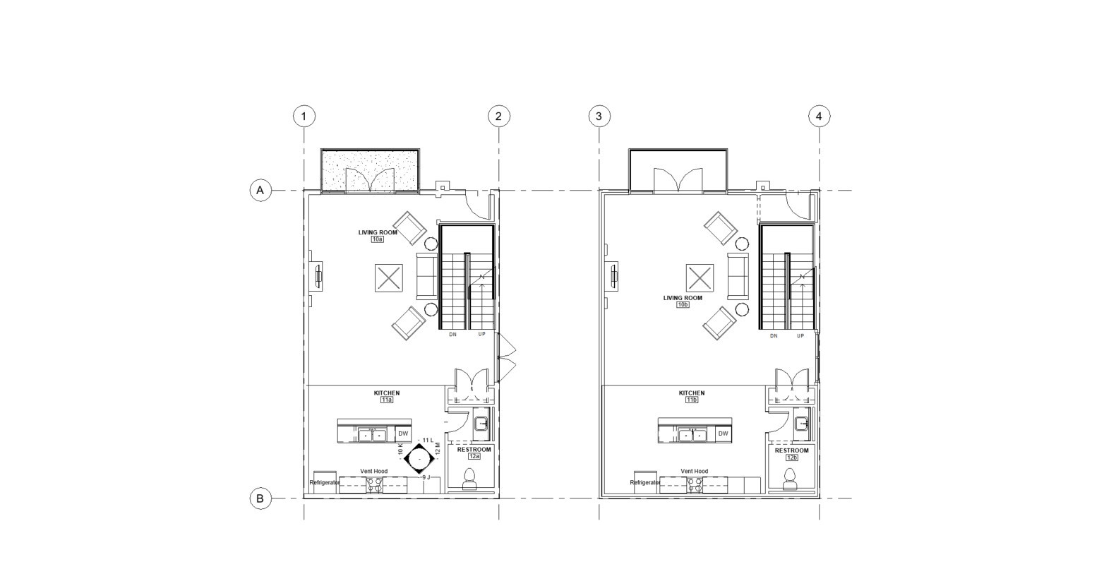
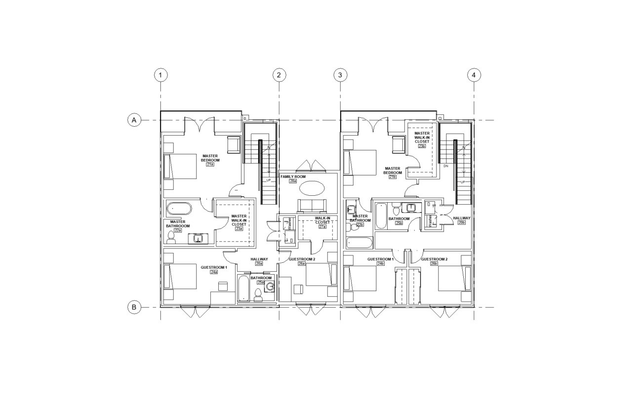
Production of Floor Plans for the Development of the Buildings
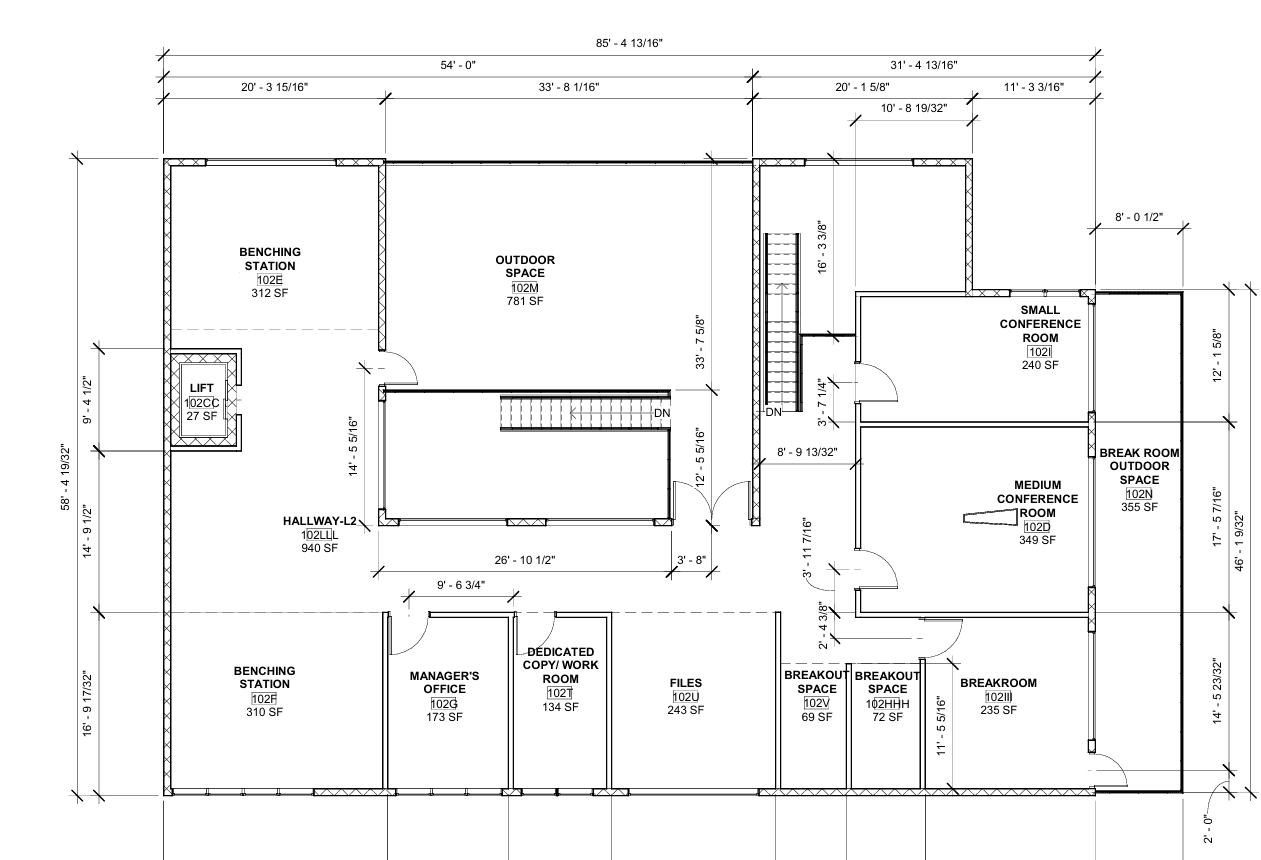
Production of Floor Plans for the Development of the Buildings
Drafting architectural plans is crucial to me as it forms the foundation of an innovative and sustainable design process. It is through drafting that I can transform my visionary ideas rooted in biophilia, science, and fluidity into tangible frameworks that guide every step of a project’s development. For me, drafting is not merely a technical exercise but an opportunity to explore the nuances of designs, ensuring they align with my commitment to creating impactful, high-standard architecture. It allows me to communicate my vision clearly to collaborators and peers, fostering collaboration and ensuring that everyone involved shares a unified understanding of the project. For architects in general, drafting is indispensable as it bridges the gap between abstract concepts and physical structures. It ensures that ideas are not only creative but also functional, safe, and achievable within given constraints. Architectural plans serve as a roadmap, detailing every aspect of a structure’s design, from spatial layouts to materials and construction techniques. Without drafting, architects would lack the precision and clarity needed to execute their designs effectively. For me, this process is even more significant, as it supports my mission to integrate sustainability and innovation seamlessly, turning my own creative vision into structures that inspire and endure.
Drafting architectural plans is crucial to me as it forms the foundation of an innovative and sustainable design process. It is through drafting that I can transform my visionary ideas rooted in biophilia, science, and fluidity into tangible frameworks that guide every step of a project’s development. For me, drafting is not merely a technical exercise but an opportunity to explore the nuances of designs, ensuring they align with my commitment to creating impactful, high-standard architecture. It allows me to communicate my vision clearly to collaborators and peers, fostering collaboration and ensuring that everyone involved shares a unified understanding of the project. For architects in general, drafting is indispensable as it bridges the gap between abstract concepts and physical structures. It ensures that ideas are not only creative but also functional, safe, and achievable within given constraints. Architectural plans serve as a roadmap, detailing every aspect of a structure’s design, from spatial layouts to materials and construction techniques. Without drafting, architects would lack the precision and clarity needed to execute their designs effectively. For me, this process is even more significant, as it supports my mission to integrate sustainability and innovation seamlessly, turning my own creative vision into structures that inspire and endure.


Material Documentation










